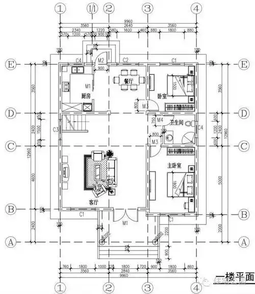
10×13米这种宅基地尺寸,适合建怎样的户型?

高清图片下载 免费 安全无风险
10×13米这种宅基地尺寸,适合建怎样的户型?

10×13米这种宅基地尺寸,适合建怎样的户型?

点击图片查看原图

图片信息

  • 格式: JPG
  • 尺寸: 640x839
  • 大小: 约1.2MB

版权声明

相关标签

自然风光 高清壁纸 4K画质

分享图片

相关推荐

基于当前图片的相似推荐

10x13米农村3层别墅,8室3厅,方正经济!

在农村长13米,宽10米的土地上盖房,该怎么设计? - 石塘网

在农村长13米,宽10米的土地上盖房,该怎么设计? - 石塘网

在农村长13米,宽10米的土地上盖房,该怎么设计? - 石塘网

面宽10.3米进深13米自建房怎样设计?_手机搜狐网

在农村地区,如何在13米长,10米宽的土地上做别墅设计? -别墅设计-乡村

10×13米这种宅基地尺寸,适合建怎样的户型?

在农村地区,如何在13米长,10米宽的土地上做别墅设计? -别墅设计-乡村

6室4厅双阳台,13x13米经典二层别墅(全图 预算 视频展示)-搜狐

新农村别墅13米面宽,户型还是对称好,三套平面图方案

宅基地面宽10米,进深12-13米,建三层小别墅怎么设计?_客厅

新农村自建房10米x13米 实用接地气户型 含平面图

随机推荐

发现更多精彩图片

今天是2020最后一天,愿2021的所有美好如期而至

中国内地女演员姚芊羽

《祝福祖国(合唱谱)》简谱

二次元萌萌哒 - 斗图表情包 - 斗图神器 - adoutu.com

一花一剑天官赐福插曲双手简谱预览1

简笔画#高跟鞋怎么画,给你画好了

15,受降仪式         (15

土猪新鲜猪肺农家散养猪肺子猪下水内脏冷冻 冷冻运输 1个猪肺【图片

独树镇实验小学 品诗词文化,画精彩意境——手抄报,绘画活动展示

今年流行西装连衣裙这样搭配时髦又有女人味