分享倒置式坡屋面图集资料下载

高清图片下载 免费 安全无风险
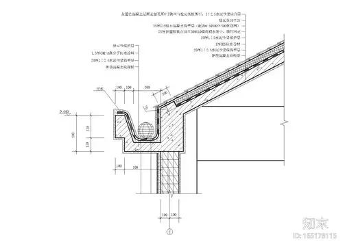
分享倒置式坡屋面图集资料下载

分享倒置式坡屋面图集资料下载

点击图片查看原图

图片信息

  • 格式: JPG
  • 尺寸: 560x402
  • 大小: 约1.2MB

版权声明

相关标签

自然风光 高清壁纸 4K画质

分享图片

相关推荐

基于当前图片的相似推荐

[分享]坡屋顶构造详图资料免费下载

坡屋顶细部构造节点详图施工图下载【id:166470156】

某坡屋面cad设计完整构造详图

某坡屋顶别墅结构详图

4套坡屋面建筑节点详图设计施工图下载

某坡屋顶cad构造详细完整节点图

坡屋顶构造分析(清楚细致)

[分享]坡屋面建筑图详图资料下载

规范中的坡屋面的檐口高度指的是哪

关键词: 建筑节点详图屋面建筑构造坡屋顶檐口

30个坡屋面建筑构造节点详图

随机推荐

发现更多精彩图片

古装神仙奇幻剧《神隐》赵露思造型"仙萌可爱"

古风美男子漫画精美壁纸

动漫壁纸 粉蓝汉服少女头像

乳腺术后压力绷带 乳房重建塑形压力胸衣隆胸缩胸乳腺术后专用假体

神话人物科普十殿阎王之楚江王

关于食材当中鱼的摆盘图片欣赏

店铺主营饰品,展示柜材料采用的是烤漆工艺,木饰面板,装修风格为北欧

水彩77马克笔77彩铅的混搭动漫女孩手绘

滴滴杀害空姐案告破,100万该给谁?网友:不解气_凤凰网科技_凤凰网