蓝色健美裤小姐姐十分纯净自然更显干净气场

高清图片下载 免费 安全无风险
蓝色健美裤小姐姐十分纯净自然更显干净气场

蓝色健美裤小姐姐十分纯净自然更显干净气场

点击图片查看原图

图片信息

  • 格式: JPG
  • 尺寸: 660x912
  • 大小: 约1.2MB

版权声明

相关标签

自然风光 高清壁纸 4K画质

分享图片

相关推荐

基于当前图片的相似推荐

运动健美裤女士女式春秋季显瘦夏季紧身裤湖蓝色可外穿可打底可瑜伽l

丝滑踩脚健美裤紧身瑜伽女提莱卡氨纶高亮运动健美操下装

街拍:微胖小姐姐,蓝色紧身裤秀身段

弹力牛仔裤女紧身蜜桃臀健美裤有口袋的女性感提臀美臀翘臀小 浅蓝色

舒适百搭 女款宝蓝健美裤 韩版显瘦

莱卡氨纶九分健美裤 高亮紧身丝滑高弹宝蓝色 定做

运动健美裤女士女式春秋季显瘦夏季紧身裤湖蓝色可外穿可打底可瑜伽l

smawft弹力面料光泽纯色爽滑直筒健美裤高腰光面舞蹈练功裤(蓝色)

原版高清视频:极品天蓝色紧身健美裤丰硕mm

高腰踩脚光泽健美裤脚蹬长裤女裤外穿修身加大码弹力打底裤加肥码

女健美裤舞蹈裤 练功裤出汗服女 宝蓝色 xl

随机推荐

发现更多精彩图片

精致气质女生动漫头像图片

毛阿敏身穿抹身材裙露出大臂,身材也不好意思露出来,杜奶奶还在装老

把猫的形象和不倒翁结合起来,于是老师灵光一显,突然踢到了女儿的不倒

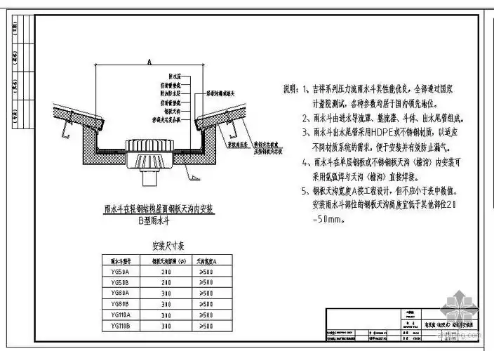
[节点详图]虹吸式屋面排水系统图

会前,许培文书记,路友华副书记,孟雪副院长,宋现让院长助理前往病区为

霸气老鹰简笔画老鹰简笔画分步骤图片教程飞翔的雄鹰简笔画老鹰老鹰的

天平高速彭大高速即将通车

白带呈豆腐渣状图片6

麻将:清一色胡牌最多,看看这个九莲宝灯!

🏞️罗浮山一日游精选路线