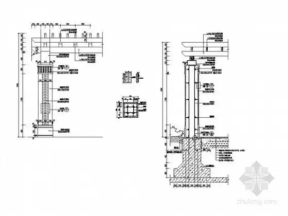
防腐木平台平面图和剖面图

高清图片下载 免费 安全无风险
防腐木平台平面图和剖面图

防腐木平台平面图和剖面图

点击图片查看原图

图片信息

  • 格式: JPG
  • 尺寸: 2000x2667
  • 大小: 约1.2MB

版权声明

相关标签

自然风光 高清壁纸 4K画质

分享图片

相关推荐

基于当前图片的相似推荐

[分享]室外木铺装资料下载

防腐木与塑木的铺装断面对比施工工艺用途是一种性能优良并十分耐用的

分享木地面铺装做法详图资料下载

某工程防腐木移动花箱设计及施工详图 (含效果图) 特色防腐木,真石漆

防腐木坐凳做法 供大家参考 画施工图的时候可以看看 价格: 20土木币

防腐木平台施工图cad整套图纸原创

[分享]室外木铺装资料下载

[分享]木地面铺装资料下载

双层防腐木廊架施工图

随机推荐

发现更多精彩图片

福清别墅之农村别墅,让你羡慕又向往

唯美动漫美少女桌面壁纸-动漫壁纸-高清动漫图片-第9图-娟娟壁纸

二次元情头污高清卡通很污的情侣头像二次元

飞影与藏马曾经都是a级妖怪

知识体系迭代,领会剑桥精髓-【中瑭国际】国际商务考察游学领先服务商

风之旅 的想法: #时尚# 古力娜扎无滤镜原图,身着黑色小… - 知乎

成都婚庆成华区第一江南玫红色小众婚礼布置

20140514须苞石竹-宜昌道万荣公寓门口

铁板网红小面筋串烧烤手工条状半成品夺命烧烤小串油炸商用3000串

新型冠状病毒手抄报模板【抗击肺炎预防传染病手抄报图片模板】