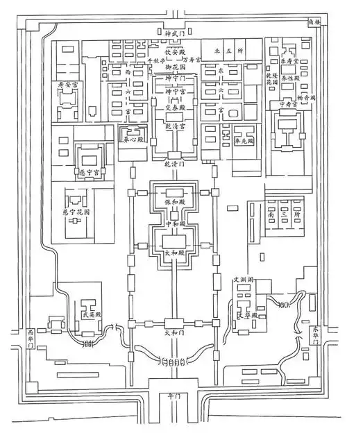
故宫平面图 从这张平面图我们可以看出,在故宫东区除了东六宫以外

高清图片下载 免费 安全无风险
故宫平面图 从这张平面图我们可以看出,在故宫东区除了东六宫以外

故宫平面图 从这张平面图我们可以看出,在故宫东区除了东六宫以外

点击图片查看原图

图片信息

  • 格式: JPG
  • 尺寸: 1080x1317
  • 大小: 约1.2MB

版权声明

相关标签

自然风光 高清壁纸 4K画质

分享图片

相关推荐

基于当前图片的相似推荐

图(点击图片看高清大图)北京故宫知识故宫位于北京市中心,旧称紫禁城

旧称紫禁城,又称大内.一般特指北京故宫.

中秋月圆让我们一起去故宫穿越梦回明清

11月23日周六故宫一日游活动开始报名啦

故宫平面图,红圈处为东华门  来源:故宫博物院官网

随机推荐

发现更多精彩图片

林心如带女儿做公益被骂惨!6岁小海豚肉嘟嘟,和生日照变化大!

母亲送孩子上幼儿园

时代少年团女装照片高清时代少年团全员女装

我总喜欢留下一片空白 my boo 棋逢对手像是比赛 —刘聪key

谢娜发长文谈自己女儿的趣事,却被传离婚,圈内人直接辟谣__凤凰网

剑刺心图片-剑刺心素材-剑刺心插画-摄图新视界

安全套正确使用方法,安全套的正确使用方法,避孕套使用方法演示_乐哈

玉皇大帝和如来谁更大 看看这些你就知道了 钻桌子底下是不存在的

由mc33363构成的6v/2a隔离式开关稳压电源电路

12.5米长,宽8米的自建房该怎么建?

女童蕾丝蝴蝶网纱套装黑色潮服t台走秀个性设计童装摩卡服装

动漫男头 / 超拽帅气动漫男生头像