程家阳&乔菲 -almost lover

高清图片下载 免费 安全无风险
程家阳&乔菲 -almost lover

程家阳&乔菲 -almost lover

点击图片查看原图

图片信息

  • 格式: JPG
  • 尺寸: 798x498
  • 大小: 约1.2MB

版权声明

相关标签

自然风光 高清壁纸 4K画质

分享图片

相关推荐

基于当前图片的相似推荐

翻译官乔菲和程家阳在直播翻译中出错的原因? - 影视资讯 | 爱剧情

乔菲和程家阳最后的结局是什么? - 影视资讯 | 爱剧情

翻译官剧透小说大结局乔菲堕胎程家阳腿受伤

翻译官结局乔菲怀孕了吗 程家阳知道乔菲怀孕了吗?

污力滔滔的翻译官乔菲的胸和程家阳的胸咚上了

亲爱的翻译官程家阳和乔菲抢东西,一个转身两人竟亲上了,尴尬

翻译官:程家阳脸上挂彩,乔菲暗暗偷乐,抓包现场精彩了-影视综视频

《翻译官》结局虐哭 乔菲得绝症程家阳出车祸

精彩视频:乔菲熬夜工作睡着,程家阳一个公主抱

程家阳也有怂的时候,乔菲开车,副驾驶的他吓得大呼小叫

乔菲:我们能干什么?程家阳:咱们把谈恋爱干的事都干一遍,套路

程家阳和乔菲旅游,还真是不浪费任何机会啊,这就恩爱上了

随机推荐

发现更多精彩图片

好看3d美女 长发 白色衣服美女电脑壁纸_动漫壁纸_墨鱼部落格

大学语文05桨声灯影里的秦淮河ppt

女明星爆火出圈的舞蹈,刘涛跳"骚舞"拦不住,火辣舞姿让人脸红

请教怎么降低低音炮的频率范围

斗罗大陆女角色去衣图

澳亚由edgar dowse collins先生创立,在专业化养殖和现代化牧场运营等

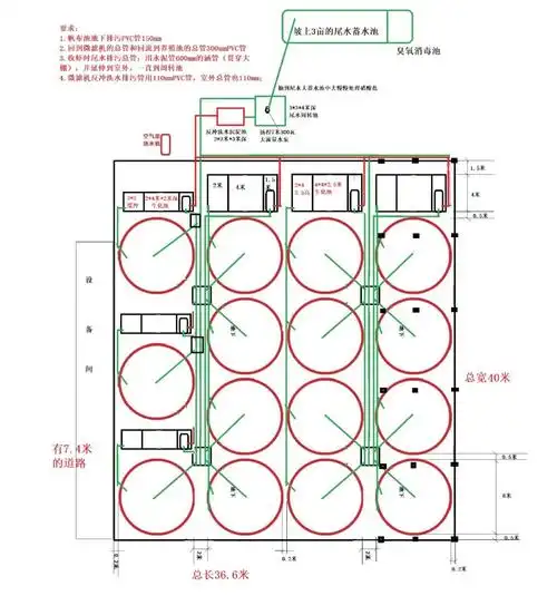
工厂化循环水养虾:第2或3段养成虾阶段:对"一拖四"设施设备的要求

水滴姿态的动态美感柔美又蕴含力量在设计师眼中,水是有形也是无形的

我们成为光荣的少先队员啦!----记天台县外国语学校一(3)班入队活动