重庆松泰医疗器械有限公司2018年优秀店长年度评选候选人

高清图片下载 免费 安全无风险
重庆松泰医疗器械有限公司2018年优秀店长年度评选候选人

重庆松泰医疗器械有限公司2018年优秀店长年度评选候选人

点击图片查看原图

图片信息

  • 格式: JPG
  • 尺寸: 520x779
  • 大小: 约1.2MB

版权声明

相关标签

自然风光 高清壁纸 4K画质

分享图片

相关推荐

基于当前图片的相似推荐

乘风破浪的店长姐姐——对话优秀店长赵俊梅

看乐有家90后女店长如何用实际行动给门店赋能

2020年度社交电商十大优秀店长

尚佰木门安徽蚌埠优秀店长陈爱萍专访

最佳店长形象奖评选

80后女店长的经验之谈:坚持脚踏实地追求创新发展

南海万达十大店长评选!就差你这票!

最佳店长形象奖评选

爱依瑞斯金牌店长多年实战经验倾囊相授

全国职业店长证书报考流程如何?证书考试难度如何?考试考啥?

随机推荐

发现更多精彩图片

无锡染发甜粉棕粉棕色

一组磊磊的腹肌图,请藏好希望节目中能多看到几次赵磊

今年短发空气烫火了

gunsync好家伙手机号真多

dps_pdf_a13008-金印客素材库-免费图片,素材,背景下载

今晚8点10分杨紫新综艺来了

斗罗大陆 第305话 教皇令(中)

6路智能照明控制器rs485多路串口继电器集中开关驱动灯控模块工1

manhattan,new york city,urban,graffiti,壁纸,高清壁纸地点,城市

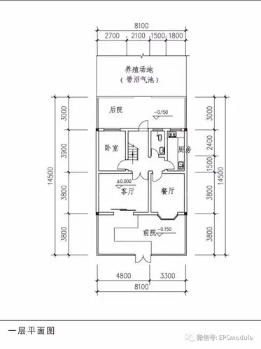
门面宽8.1米*进深14.5米,三层单家独院式

活动作品人族征战无数的瓦王瓦里安