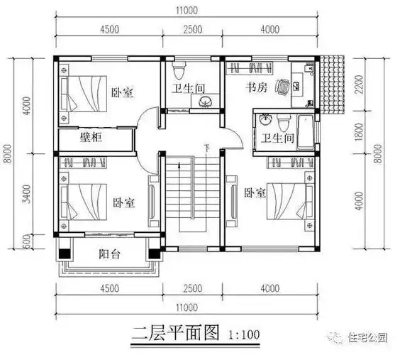
8x10米三层普通农村建房设计图,小户型却有大格局 - 一层别墅设计图

高清图片下载 免费 安全无风险
8x10米三层普通农村建房设计图,小户型却有大格局 - 一层别墅设计图

8x10米三层普通农村建房设计图,小户型却有大格局 - 一层别墅设计图

点击图片查看原图

图片信息

  • 格式: JPG
  • 尺寸: 650x450
  • 大小: 约1.2MB

版权声明

相关标签

自然风光 高清壁纸 4K画质

分享图片

相关推荐

基于当前图片的相似推荐

微信公众号:住宅公园,450套农村自建房图纸下载,别墅定制设计,施工队

面宽8米造价13万起2018农村自建房这10套户型最适合

8x10米二层别墅, 造价经济, 布局很接农村地气, 家家都建得起

8x16三层中式框架结构自建别墅设计 - 住宅在线

农村8米面宽好户型3厅5卧带内卫让土豪都为之疯狂的中式豪宅

纯净简洁现代风格别墅设计,上海市张宅三层8x10米

8x10米自建房,宅基地小却设计出高大上

面宽8米造价13万起2018农村自建房这10套户型最适合咱老百姓

求农村80平米(8*10米)的自建房方案

农村自建房平屋顶设计最好8x14米3层别墅户型图

8x11米四层现代别墅,多扇落地窗 套房,给你宽敞明亮的生活

8x10米自建房户型,一套适合农村人的现代别墅

随机推荐

发现更多精彩图片

念念桃花明代复原款福禄耳环玛瑙珍珠耳钩耳夹古风汉服旗袍耳饰

徐冬冬—《余罪》"沈嘉文"

生活中的杠杆 观察下面这几个图中的工具,想一 想,它们有什么共同特点

一战时,德国头盔上为什么会有个"角"?

原创刘芸称结婚9年从不做饭被老公郑钧宠上天指甲暴露真实生活

昆山地图区划交通地图

百利调味品:曾上北京奥运会"菜篮子"

25-q燃气蒸汽锅炉安装

家养花:别传谣,绿化带比你家好发育