画宫殿算不算场景或环境描写

高清图片下载 免费 安全无风险
画宫殿算不算场景或环境描写

画宫殿算不算场景或环境描写

点击图片查看原图

图片信息

  • 格式: JPG
  • 尺寸: 1181x835
  • 大小: 约1.2MB

版权声明

相关标签

自然风光 高清壁纸 4K画质

分享图片

相关推荐

基于当前图片的相似推荐

素描中国古代建筑-花瓣网|陪你做生活的设计师 | 线稿 江南 建筑 院子

古建文化一篇文章带你看懂宫殿建筑国金碧辉煌的宫殿呢

皇宫,45°,简略过程图

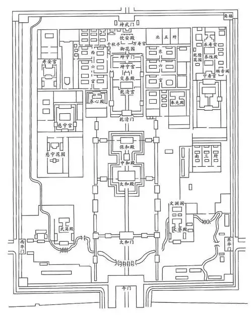
明清宫殿分布图及其作用是什么

画里等级最高的形式,最为贵气,因此只能用于皇家宫殿,皇家坛庙的主殿

建筑设计 中国古代宫殿 【正版新书】 中国古代宫殿

盘点历史宫殿平面图

中外古典建筑中国建筑413600岁的故宫有什么

中国古代著名宫殿复原图

某地寺庙天王殿建筑设计平立剖面图纸

宫殿品牌vi系统设计名动漫cg数娱47宫殿一角忍冬花的小米181国潮插画

古代在设计建造皇城时,讲究"天人合一",天上的星辰与都城规划相对应

随机推荐

发现更多精彩图片

抱紧你表情包 - 日常表情包

从"曦"出发!斓曦幸福列车公益关爱留守儿童

海滩,大海,礁石,椰树,沙滩,夏天,风景,被风吹过的夏天海滩壁纸图片

圆形形状 - 素材 - canva可画

小半尤克里里谱弹唱教学趣弹音乐版

崇尚英雄才会产生英雄争做英雄才能英雄辈出伟大抗美援朝精神将激励新

防汛专用沙袋加厚帆布堵水物业商铺挡水消防防台防洪沙袋定做珠海3070

阳光房保温隔热板搭配玻璃效果棒棒的