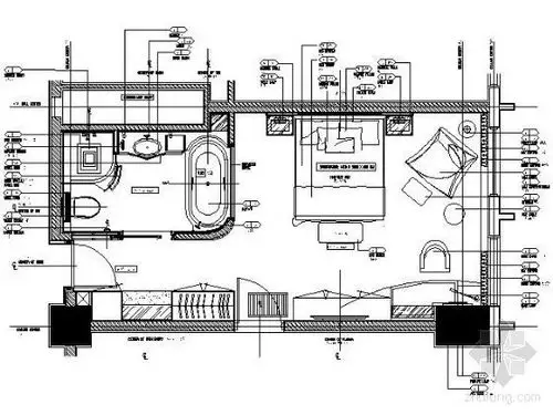
原创酒店客房详细平面布置图施工图下载【id:651627606】

高清图片下载 免费 安全无风险
原创酒店客房详细平面布置图施工图下载【id:651627606】

原创酒店客房详细平面布置图施工图下载【id:651627606】

点击图片查看原图

图片信息

  • 格式: JPG
  • 尺寸: 3309x2339
  • 大小: 约1.2MB

版权声明

相关标签

自然风光 高清壁纸 4K画质

分享图片

相关推荐

基于当前图片的相似推荐

分享酒店大床间平面图资料下载

知名企业酒店室内户型标准图纸设计

标准大床房平面方案

[分享]酒店大床房设计cad图资料免费下载

厦门湖里区万达公寓酒店式公寓:途家万达广场公寓中式豪华大床房-途家

快捷酒店客房平面图片

[唐山]高档连锁五星级酒店大床房施工图(含效果)

cad酒店大床房平面布置

[吉林]豪华商务酒店标准大床房装修图(含效果)

某酒店标准客房cad施工图施工图下载

随机推荐

发现更多精彩图片

蔡徐坤的喉结拉链纹身贴,尽显性感.

贝克汉姆再剪光头,比发型他真没输过!这6款你也能驾驭

香奈儿2019春夏时装秀

柿柿如意.#油画定制 #纯手绘 - 抖音

养生篇——按揉2个穴位,肩颈轻松,放松心情

儿童种植小盆栽迷你自种魔豆植物魔法豆许愿豆种子发芽生长观察盒

最新上架:13年金杯格瑞斯,2.5排量丰田发动机,精品车况, - 抖音

主题:小超市布局求改善

小学语文《闻一多先生的说和做》说课稿(3)