广安市某居住区7层砖混结构商住楼建筑设计cad图纸(1层商用)

高清图片下载 免费 安全无风险
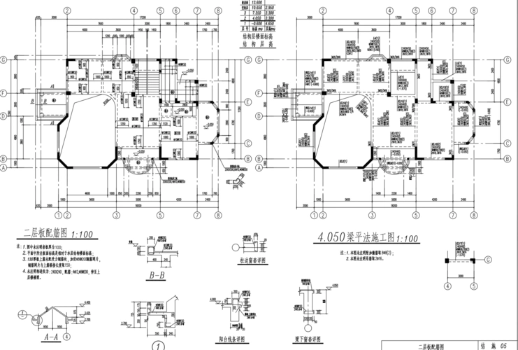
广安市某居住区7层砖混结构商住楼建筑设计cad图纸(1层商用)

广安市某居住区7层砖混结构商住楼建筑设计cad图纸(1层商用)

点击图片查看原图

图片信息

  • 格式: JPG
  • 尺寸: 1440x1020
  • 大小: 约1.2MB

版权声明

相关标签

自然风光 高清壁纸 4K画质

分享图片

相关推荐

基于当前图片的相似推荐

[分享]住宅建筑图纸cad资料下载

农村别墅设计图纸:二层10.00×8.80建筑结构施工图

材料:石材 幕墙面板材料:组合幕墙 结构形式:钢筋混凝土结构 图纸深度

xuehai.net http://doc.xuehai.net百年好图本套图纸共6张第1张

中式徽派风格建筑cad施工图四合院园林住宅马头墙平立面cad素材

美式3层独栋别墅建筑设计施工图(含全套cad图纸)

新农村住宅设计方案

欧式坡屋面3层独栋别墅建筑设计施工图(含全套cad图纸)

高层住宅楼设计二维图- 住宅建筑图纸 - 沐风网

经典仿古带地下室观景亭自建房屋建筑图纸

某地两套两层带地下室别墅建筑设计施工图_cad图库 -建库图纸

随机推荐

发现更多精彩图片

国际上最帅的十个混血男星(全球公认最帅混血男明星)(2)

陈伟霆坑道具组,迪丽热巴眯眼,男神女神也有搞笑的时候!

电影推荐推荐十部热血沸腾的爱国电影

11款轻奢时尚复古衬线英文字体logo品牌标识排版版式字体安装合集

【图】女人后背有痣代表什么? 后背痣意义解析大全

[苏州市]哈弗h7购车优惠2万元

年轻女子手拿圣经的剪影,在日出背景下,在光线和景观中举起基督教交叉

狗的桃子里有肉瘤可以看到还是总流血.那能做手术吗影响生育不

14《移民一号》何明轩 三年级.jpg

保单信息泄漏有影响吗 保险公司账号密码外泄

金纺洗衣液袋装金纺柔顺剂香气持久衣服物柔软理剂洗衣液袋装薰衣草