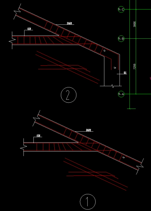
坡屋面梁平法施工图制图规则和构造详图

高清图片下载 免费 安全无风险
坡屋面梁平法施工图制图规则和构造详图

坡屋面梁平法施工图制图规则和构造详图

点击图片查看原图

图片信息

  • 格式: JPG
  • 尺寸: 610x432
  • 大小: 约1.2MB

版权声明

相关标签

自然风光 高清壁纸 4K画质

分享图片

相关推荐

基于当前图片的相似推荐

斜屋面的有梁板的梁如何处理

1) 斜屋面结构梁截面形式,高度,标高取值规定斜屋面梁根据梁底标高的

屋面斜梁下砖砌体工程施工方案

请问坡屋面梁的布置范围?

屋面斜梁计算公式图解 屋面面积怎样计算?-图片大观-奇异网

坡屋面梁,板等节点构造详图

请问坡屋面折梁钢筋量应该怎么计算,我是画好平面梁和板后,板三点定义

某地坡屋面梁构造详图cad图纸

关于斜屋面定额套用

本层水平梁与坡屋面斜梁如何设置支座

请教老师坡屋面的梁是要平齐板顶的吗

顶层梁与坡屋顶梁重合该如何处理

随机推荐

发现更多精彩图片

索隆 索隆图片帅气图片-搜狗图片搜索 草帽 86 12:00 - 抖音

与林子祥穿情侣装,郭晶晶夫妇到贺_林德信_照片_黎诺懿

美式设计室内楼梯效果图效果图

美人怀旧风流倜傥楚留香之郑少秋

说不出口的我爱你, 做不出来的拥抱你, 唯一的宗旨, 把你常放心里

张曼玉,这位美丽而富有才华的女演员,她的成长过程和演艺之路充满了

学生:(拼命想.)舞蹈是舞者由心而发的外化肢体动作.

观世音传奇:观音得道成佛,如来封妙善前世情郎为观音的护法天神

【假面骑士chaser】当chaser懂得了爱情

发展委员会办公室党支部开展我和我的祖国主题教育活动爱国主义电影我

60x97cm80版#版画#神奇宝贝#喷火龙#水箭龟#妙蛙花

一万美元堆在白色的上面