细节图给大家分享出来#素描 #杨玉环 #王者荣耀 #游戏人物

高清图片下载 免费 安全无风险
细节图给大家分享出来#素描  #杨玉环  #王者荣耀 #游戏人物

细节图给大家分享出来#素描 #杨玉环 #王者荣耀 #游戏人物

点击图片查看原图

图片信息

  • 格式: JPG
  • 尺寸: 1080x1514
  • 大小: 约1.2MB

版权声明

相关标签

自然风光 高清壁纸 4K画质

分享图片

相关推荐

基于当前图片的相似推荐

教你画王者荣耀人物—安琪拉(附过程图) 生命就像人家的玩偶,修修补补

王者荣耀绘画 #画画 - 抖音

教你画王者荣耀人物——西施(附过程图) 绘画工具ipad,绘画软件pro

教你画王者荣耀人物西施附过程图

ipad绘画王者荣耀兰陵王.#图文伙伴计划 #王者 #王者荣 - 抖音

教你画王者荣耀人物—安琪拉(附过程图) 生命就像人家的玩偶,修修补补

项羽虞姬王者荣耀角色皮肤高颜值diy数字油画手绘填色油彩装饰画

王者荣耀女英雄小乔简笔画怎么画?

王者荣耀孙尚香彩铅笔手绘

手绘 #画画 #王者荣耀 #卡通人物 # - 抖音

【王者荣耀·李白】水彩 线稿

王者荣耀 李元芳 手绘

随机推荐

发现更多精彩图片

井柏然阳光帅气白衬衫休闲小清新写真

原创古装17套造型妆容都不变鞠婧祎的半永久式妆容真的很强

郭碧婷订婚后亮相机场,穿针织裙搭黑长直,仙气可以分我一点吗

二哈合集5_原耽语录二哈和他的白猫师尊燃晚板写我要上首推见字如晤

4件装女童发育期纯棉背心小学生内衣吊带中大童小背心防涂点抹胸白色

莫迪里阿尼 蓝色椅子中的珍妮·海布特

陈晓《笑傲江湖》林平之

第二节 世界的海陆分布ppt_word文档在线阅读与下载_无忧文档

最全脸谱简笔画 值得收藏

nkt康复期间脓性鼻涕特别多.有没有一样的情况?急急急

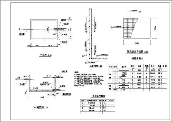
4000方矩形钢筋砼蓄水池cad图纸