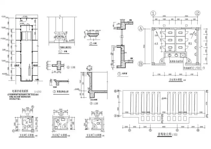
[分享]某市科技馆全专业建筑设计施工图(cad 水电 结构 建筑)

高清图片下载 免费 安全无风险
[分享]某市科技馆全专业建筑设计施工图(cad 水电 结构 建筑)

[分享]某市科技馆全专业建筑设计施工图(cad 水电 结构 建筑)

点击图片查看原图

图片信息

  • 格式: JPG
  • 尺寸: 969x680
  • 大小: 约1.2MB

版权声明

相关标签

自然风光 高清壁纸 4K画质

分享图片

相关推荐

基于当前图片的相似推荐

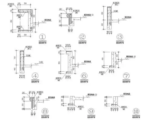
11个平屋面建筑构造节点详图-建筑节点详图-筑龙建筑设计论坛

[福建]惠安净峰医院综合楼建筑设计施工图-节点大样详图

建筑构造强身节点构造详图

节点大样详图项目信息项目名称:越秀天悦江湾公众展廊设计建筑设计

某公共建筑干挂石材幕墙节点图cad-幕墙结构节点详图-筑龙结构设计

cad中式木结构五开间单檐歇山顶岭南风格大殿古建筑节点详图cad

某大楼玻璃外立面详细施工节点图cad-幕墙结构节点详图-筑龙结构设计

2019最新整理53个现浇混凝土墙建筑节点详图

4套坡屋面建筑节点详图设计施工图下载

随机推荐

发现更多精彩图片

【朴叙俊】【金智媛】170624 三流之路kkbss花絮 中字

观赏辣椒品种有哪些,观赏辣椒的种植方法 - 农百科

机场实拍飞机起飞降落的过程!近距离观赏,感觉就是不一样

原创手绘贺卡浪漫唯美婚礼生日感谢祝福卡片

选择你的战锤40k阵营十一艾达灵族篇

先天性乳头凹陷的原因:1,乳头和乳晕的平滑肌发育不良:乳头有输乳管的

女人四十岁不是你想追就能追#心若年轻何惧岁月老去 #余生很贵 - 抖音

装饰装修工程施工方案

小时候,开斋节是妈妈买回来的新衣裳,是揣在兜里舍不得花的几块 - 抖