小游园2.校园景观

高清图片下载 免费 安全无风险
小游园2.校园景观

小游园2.校园景观

点击图片查看原图

图片信息

  • 格式: JPG
  • 尺寸: 1080x758
  • 大小: 约1.2MB

版权声明

相关标签

自然风光 高清壁纸 4K画质

分享图片

相关推荐

基于当前图片的相似推荐

校区小游园设计 p1 总平面图,分析图,设计说明 p2p4四季剖面图,局部

景观快题校园小游园

趣味游园 放飞童心——和舍中心学校庆六一游园活动

夏日游园会 手绘地图_画画的小刘-站酷zcool

每天学个方案2小游园多方案构思2

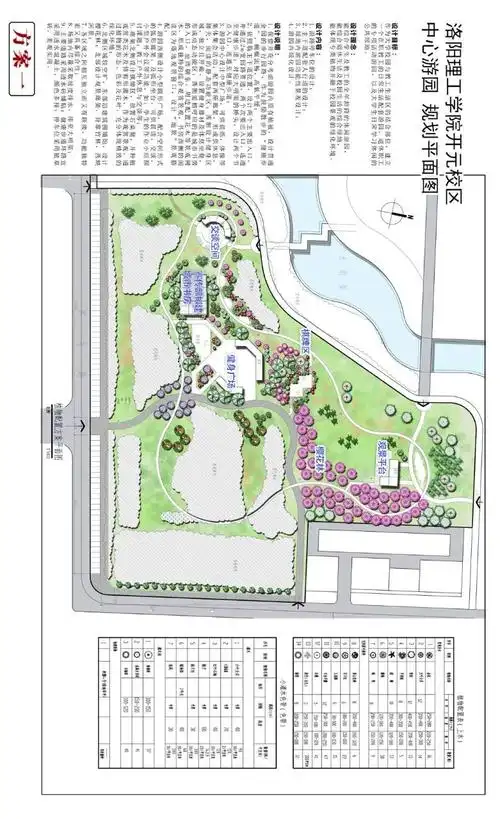
先来给学校游园方案投个票吧_洛阳理工学院_零二七艺考

自己设计的学校小游园 大家批下 加cad图

小游园设计带彩铅配色

随机推荐

发现更多精彩图片

新氧- 城市迷宫里 | 切开双眼皮 | 重庆同城 | 小哥哥超帅哒 | 真人

裘千仞皈依佛门后实力大增,竟能单挑金轮法王,还大战三天三夜?

滑稽小人跳舞gif动态表情包高清无水印完整版

党徽标准型磁铁式别针大号胸针党员胸章徽章为人民服务磁扣蝴蝶扣 半

【案例】官员体验看病难:医院的"病"谁来治?

大众朗逸仪表盘报警如图 请问怎么解决 (我知道是灯的问题. 但是检查

南四环,西四环,北四环(均不含本路,区域内连霍高速不限行)以内区域的

笛子独奏乐曲《枣园春色》高明 曲

信仰圣光,魔兽世界职业篇:圣骑士背景及特色,单刷就属它夺目!_里奥·

开了十几年!来这家老牌牛肉店,还是要坐在树下吃|牛肉|牛筋|牛排馆_新

陕西面食加盟来电咨询"本信息长期有效"