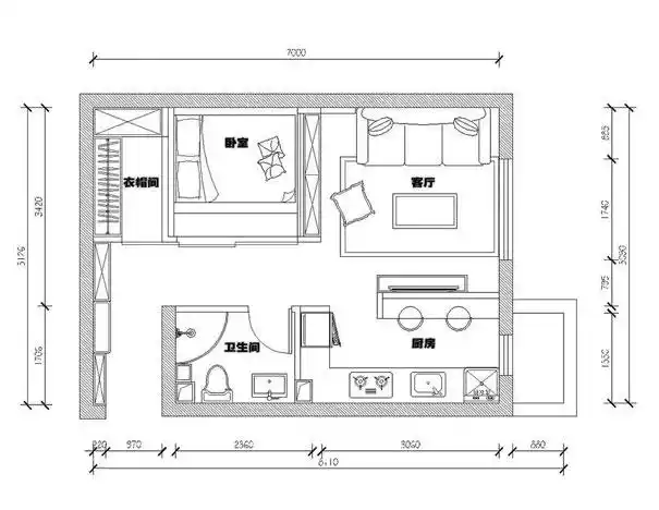
最新地中海风格40平米小户型平面图

高清图片下载 免费 安全无风险
最新地中海风格40平米小户型平面图

最新地中海风格40平米小户型平面图

点击图片查看原图

图片信息

  • 格式: JPG
  • 尺寸: 1138x1026
  • 大小: 约1.2MB

版权声明

相关标签

自然风光 高清壁纸 4K画质

分享图片

相关推荐

基于当前图片的相似推荐

40平米 头条糕户型 如何一室改两室 小户型设计 墙体开一个拱形窗的

原创爆改40㎡小户型完工太惊艳该有全都有还有独立衣帽间晒晒

5万40平米现代小户型/一房装修效果图,40平方温馨小公寓装修案例效果

2015经典地中海风格40平米小户型平面图

40平方小户型平面方案求大神优化方案

仅有40平米的小户型,做了6套平面方案.最后一套突破你的想象

40平米乡村房子小户型设计图案例

清新小户型4间40平小公寓设计2

40平米小户型室内设计

40平方一居小户型改造优化设计

推荐 69 方案 69 平面优化 69 40平方小户型, 啊gg

40平米小户型装修效果图欣赏实景拍摄

随机推荐

发现更多精彩图片

陈赫张子萱怎么好上的(因戏生情为他甘愿淡出娱乐圈)(27)

金枪峰,形态威猛挺拔,充满阳刚之气

红色和粉色的草莓放在一起

素描 #设计素描 #场景素描 #清华设计素描 #广美设计素描

教你在家做干锅肥肠,香辣过瘾,喜欢吃肥肠的不要错过

580人付款淘宝王者,荣耀t恤男短袖英雄人物铠青龙志 曙光守

紫色花图片#平安吉祥过大年# #请你看烟花# #热点引擎计划# #开始谋划

青海大焜锅馍馍西北特色即食大花馍烤馍真空保鲜新鲜现烤苦豆胡麻味5

man02verimwestpazifikchinaskriegsschiffeübensuchund

(第98天)动物园参观须知