11g1o1-1疑难解答悬挑梁上部纵筋在墙柱部位如何做锚固?

高清图片下载 免费 安全无风险
11g1o1-1疑难解答悬挑梁上部纵筋在墙柱部位如何做锚固?

11g1o1-1疑难解答悬挑梁上部纵筋在墙柱部位如何做锚固?

点击图片查看原图

图片信息

  • 格式: JPG
  • 尺寸: 382x263
  • 大小: 约1.2MB

版权声明

相关标签

自然风光 高清壁纸 4K画质

分享图片

相关推荐

基于当前图片的相似推荐

施工平法图集89页,悬挑梁.求大神解答

悬挑梁箍筋起步距离:50mm

某悬挑梁节点构造详图

某纯悬挑梁xl配筋节点构造详图

两端悬挑的悬挑梁配筋如何按图修改

16g101建筑图集解析六悬挑梁非框架梁钢筋下料计算式

[分享]混泥土悬挑梁图集资料下载

悬挑梁钢筋原位标注 - 云知

悬挑梁钢筋算量标准(悬挑梁钢筋算量)(5)

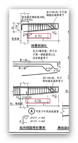
内容简介 纵向钢筋弯折要求,悬挑梁端附加箍筋范围,纯悬挑梁xl共1张

挑板式悬挑配筋示意图悬挑构件,无论是板还是梁,悬挑结构的根部是受

随机推荐

发现更多精彩图片

一个曾经红极一时的古装男神,如今却陷入了困境.

歼-11bs战斗机 资料图 - 全球航空观察 - 图虫

白金钻石项链-伯爵珠宝 g37lg600

节节草名字好听又可爱,听说有人在高价收购

女童连衣裙夏童装儿童裙子夏季条纹公主裙宝宝中大童衣服女公主

中国人为什么要食用蝙蝠?

2021年新年必备的美甲款式,清新脱俗不撞款,高级时尚

完整版小升初英语试卷真题及答案

中国古代又叫"九州",分别指的哪九个州?

裴珠泫稀有头像!清纯大美女来也!