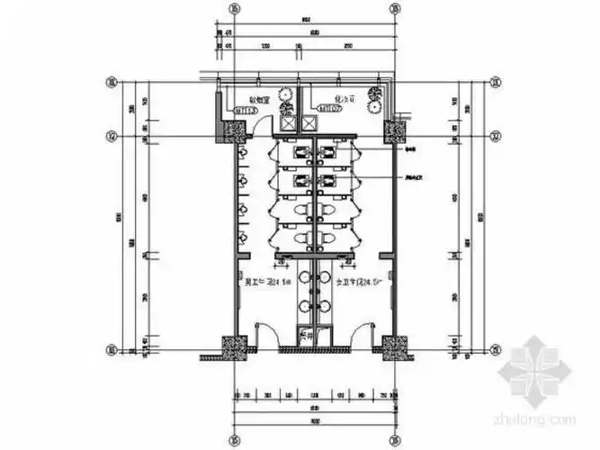
郑州医疗公司570㎡办公室空间设计 - 梅德斯帕

高清图片下载 免费 安全无风险
郑州医疗公司570㎡办公室空间设计 - 梅德斯帕

郑州医疗公司570㎡办公室空间设计 - 梅德斯帕

点击图片查看原图

图片信息

  • 格式: JPG
  • 尺寸: 3543x1772
  • 大小: 约1.2MB

版权声明

相关标签

自然风光 高清壁纸 4K画质

分享图片

相关推荐

基于当前图片的相似推荐

《百纳》公共空间 卫生间设计

《公共空间设计》_part39

time——此时/ 公共交流空间

公共卫生间设计方案

公共餐饮卫生间设计

小型公共卫生间|空间|家装设计|诗和酒馆_原创作品-站酷zcool

【不受理】召集办公空间平面设计图,悬赏1500

小型商场公共卫生间平面图设计

设计: 朱毅 刘宇 软装设计: 朱毅 刘宇 灯光设计: 朱毅 刘宇 平面设计

丨中国铁建西派时代社区公共空间示意图

房屋平面图,室内设计平面图,室内平面图,公共空间设计,公共空间平面图

随机推荐

发现更多精彩图片

娄艺潇和男友李川现身机场,口罩遮面难掩亲密

【新歌推荐】于洋 -《下辈子不要再遇见》

天使翅膀纹身图片_背部纹身图案

专业详解|热门的会计学为什么两极分化严重?

奥特曼#赛罗和贝利亚的女朋友,哪个更可爱?

利拉德,一人一城的代表,可能注定无法夺冠了

在朗斯代尔石样本中观察到的独特结构被认为是创造除了具有电可塑性

准备装房子,我在图中圈出来的这几个假飘窗,我可以把它们打掉吗?

"老赖"的信息可以来这里查询

把复联宇宙扩充了不少,主要是对付奥创.

em>baby /em> em>贝贝 /em>