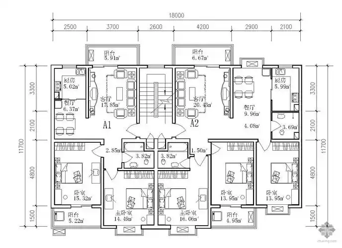
各户型-大小的中央空调解决方案(100平三室两厅)

高清图片下载 免费 安全无风险
各户型-大小的中央空调解决方案(100平三室两厅)

各户型-大小的中央空调解决方案(100平三室两厅)

点击图片查看原图

图片信息

  • 格式: JPG
  • 尺寸: 640x960
  • 大小: 约1.2MB

版权声明

相关标签

自然风光 高清壁纸 4K画质

分享图片

相关推荐

基于当前图片的相似推荐

现在中央空调的大部分小的系统都是用的一拖多的空调,大部分机还有

在成都装家用中央空调,你肯定有这8个疑惑!-实阳机电

美的家用小多联中央空调对比

新家装了个美的中央空调

01家用中央空调是什么?

中央空调吊顶多高合适客厅中央空调安装效果图

家装中央空调这样设计吊顶更和谐

大金中央空调不制冷原因(图1)

怎样安装家用中央空调可以避免错误|家装住宅_中央空调安装|绿之枫

2022年有哪些风管机/中央空调值得推荐? - 知乎

在无锡中央空调冷热源中水源热泵系统空气源热泵系统风冷冷热

中央空调安装效果图大全

随机推荐

发现更多精彩图片

超级治愈笑容甜美的甜妹头像

特别严重的放射性皮炎图片

亲们,我现在孕7个月,今天上午半天内裤都脏了,像是流的褐色分泌物

西北四小龙:兰州,乌鲁木齐,西宁,银川|乌鲁木齐市|西安_网易订阅

铁甲小宝呱呱蛙表情包

褐色_皮革_纹理_特写_图片大全—全景创意图库(quanjing.

这只黑壳虾是抱卵了吗?

在毛孔里堆积,越堆越多,越来越硬,最后硬化形成了油脂角栓或者油脂粒

广汽乘用车2021款传祺gs8

高中化学必修一二化学方程式汇总