家装水电施工图要这么看

高清图片下载 免费 安全无风险
家装水电施工图要这么看

家装水电施工图要这么看

点击图片查看原图

图片信息

  • 格式: JPG
  • 尺寸: 750x701
  • 大小: 约1.2MB

版权声明

相关标签

自然风光 高清壁纸 4K画质

分享图片

相关推荐

基于当前图片的相似推荐

家装水电施工标准是怎么家装水电施工流程

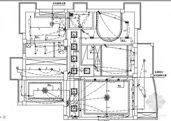
1 电气安装施工图的识读 图1-1~图1-3分别为某三层(一梯

装修时必须要知道的18个水电改造注意事项

【装修课堂】隐蔽工程里水电拆改最复杂 这5点禁忌装修小白得留心!

谁能给我一套室内改水改电cad图和施工图

家庭装修典型电气图-建筑电气施工图-筑龙电气工程论坛

装修水电线路怎么走才对

这个新房装修的水电图合理吗?

我想请大侠们帮我设计一张水电布线图纸,急!

家庭装修中遇到的水电所有疑问,解决方法都在这里

简欧风格家装,水电都有 - cad施工图-图库图块 室内人

随机推荐

发现更多精彩图片

像册模板设计图__边框相框_底纹边框_设计图库_昵图网nipic.com

女明星古装现代装大对比,赵丽颖美若天仙,迪丽热巴酷似希腊公主_杨幂

朴宝英搭档宋仲基《狼少年》:人与狼谈恋爱? - 知乎

象有形/孤独的影子 设计师原创 抽象木雕 艺术品摆件

从极点作圆ρ=2acosθ的弦,求各弦中点的轨迹方程.

黄金恐龙王鱼大型古代鱼观赏鱼

今天拆一个土豆片盲袋

根据现代科学解释,鬼火"就是"磷火",是一种很普通的自然现象.

直播团队搭建之场控场控的岗位职责和内容

广西少数民族系列一一天峨蓝衣壮