桥梁上部施工技术全套配套课件满洪高1简支梁桥的构造ppt

高清图片下载 免费 安全无风险
桥梁上部施工技术全套配套课件满洪高1简支梁桥的构造ppt

桥梁上部施工技术全套配套课件满洪高1简支梁桥的构造ppt

点击图片查看原图

图片信息

  • 格式: JPG
  • 尺寸: 860x645
  • 大小: 约1.2MB

版权声明

相关标签

自然风光 高清壁纸 4K画质

分享图片

相关推荐

基于当前图片的相似推荐

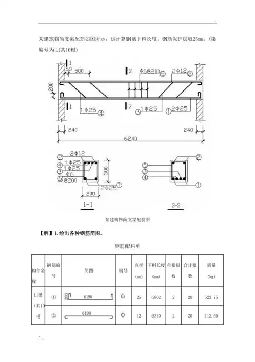
某建筑物简支梁配筋如图所示

展开全部 简支梁,两个柱子在两端承受竖向载荷.

简支梁 连续梁 外伸梁

造价工程师土建工程复习要点简支梁桥

14图示简支梁在其中点受到力f作用而产生静变形已知梁长度为l弯曲刚度

18m预应力简支空心板梁桥设计计算

根据简支梁简图简支梁简支梁示意图简支梁计算简图简支梁图片简图

图1 立柱为受均布荷载的简支梁计算简图

图5-70所示三根简支梁,跨中均受集中力p作用,若它们的跨度之比为ι1

随机推荐

发现更多精彩图片

沉香手串怎么穿?「手串怎么穿手串怎么穿」 第1张

广州男篮和吉林男篮,要了解到山西男篮在首阶段葛昭宝和张春军伤缺

室内专属图例图标cad图库,你必须拥有!

所有的美好都不是一蹴而就#板绘 #绘画过程 #插画 #玫瑰 - 抖音

白驹过隙-萌趣果冻黑白文字

哥哥快要下蛋了要是可以能不能帮我把家务做一下广式老吴

李欣燃早春街拍曝光 清新可人笑容治愈

【宝马x72019款xdrive m50i钥匙正面汽车图片-汽车图片大全】-易车

油画棒--海浪简笔画." 爱应该是让人变得温柔与勇敢,而不是 - 抖音

运动会,省运会,主题绘画,简笔画,儿童画素材打印涂色,马克笔 - 抖音

激动南京江宁空港新城如意湖迎新进展太美啦

2021款福特f150猛禽谢尔比版顶配现车