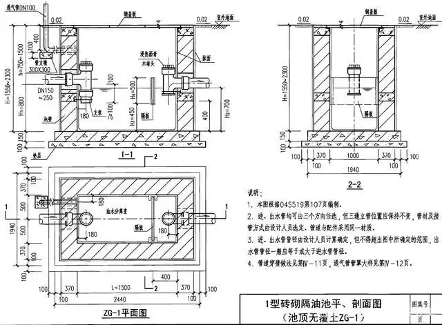
请问gg1型隔油池的做法及规范是什么样的

高清图片下载 免费 安全无风险
请问gg1型隔油池的做法及规范是什么样的

请问gg1型隔油池的做法及规范是什么样的

点击图片查看原图

图片信息

  • 格式: JPG
  • 尺寸: 880x594
  • 大小: 约1.2MB

版权声明

相关标签

自然风光 高清壁纸 4K画质

分享图片

相关推荐

基于当前图片的相似推荐

砖砌三级隔油池大样

隔油池及隔油器的选型与计算

定做隔油池餐饮厨房滤油器污水处理油水分离器小型不锈钢隔油池

厂家批发隔油池各种型号化粪池 新型商砼玻璃钢混凝土加固化粪池

三级过滤隔油池大样图

定做隔油池餐饮厨房商用室外地埋式玻璃钢三级成品油水分离器化油池30

意味餐饮隔油池大样图

附图10 隔油池详图.dwg

[分享]gg1sf隔油池图集资料下载

砖砌三级隔油池cad大样图

27 平流式隔油池示意

随机推荐

发现更多精彩图片

20201029电脑壁纸v字仇杀队

图吴卓羲祝福张馨予引关注粉丝希望两人各自安好

href="#" data-lemmaid="2198694">空空导弹 /a>

给你一个眼神满满体会吧霸气冷血女生头像黑白

外高加索三国行之格鲁吉亚:上帝的后花园(3)

小店镇中心幼儿园小一班开展"防一氧化碳中毒"安全教育活动

rose壁纸|你还有哪些rose绝美壁纸.无水印高清壁纸免费 - 抖音