楼顶为什么要安装避雷针

高清图片下载 免费 安全无风险
楼顶为什么要安装避雷针

楼顶为什么要安装避雷针

点击图片查看原图

图片信息

  • 格式: JPG
  • 尺寸: 1013x1280
  • 大小: 约1.2MB

版权声明

相关标签

自然风光 高清壁纸 4K画质

分享图片

相关推荐

基于当前图片的相似推荐

避雷针怎么接线 接闪器的保护范围的计算,在gb50057《建筑物防雷

避雷针的工作原理(尖端放电和避雷针的工作原理)

避雷针安装示意图 避雷针制作方法

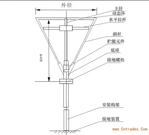
可控放电避雷针结构示意图

图 3 cfg-x1 型可控放电避雷针 安装支架示意图 3 雷电计数器安装如图

图4 避雷针原理示意图

a01避雷针制作安装图

避雷针要从基础时就记得,莫等封顶了才想起,后悔莫及

农村建房子,需不需要安装避雷针?

单指避雷针安装示意图

随机推荐

发现更多精彩图片

江疏影叫杨祐宁脱光衣服去游泳

大表姐刘雯亮相第71届托尼奖红毯,碎花抹胸裙宛如童话公主

杨绛先生经典语录名言精选字贴抄写成人鲸落体楷体行书硬笔练字帖

亚马逊户外急救工具野外求生装备套装旅行野营生存多功能工具

【楷书五言联 对联 纸本】拍卖品_图片_价格_鉴赏_书法_雅昌艺术品

40米预应力简支t梁新规范端横隔板钢筋布置图节点详图设计

上古神话传说 共工触天_神话故事简笔画

3㎡南北高层(共11层)2010年建造同安花园武安市城区同安街429号品质