北京某直饮水机房全套图纸(cad)

高清图片下载 免费 安全无风险
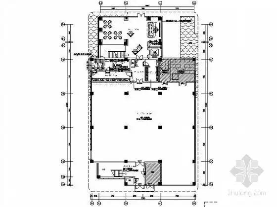
北京某直饮水机房全套图纸(cad)

北京某直饮水机房全套图纸(cad)

点击图片查看原图

图片信息

  • 格式: JPG
  • 尺寸: 760x582
  • 大小: 约1.2MB

版权声明

相关标签

自然风光 高清壁纸 4K画质

分享图片

相关推荐

基于当前图片的相似推荐

厨房嵌入式饮水机净水器家用直饮管线机加热过滤净饮一体机嵌入式饮水

研发饮水机结构件设计守则3

关键词: 体育场cad图块篮球场平面图运动场地cad平面

同事的图纸如此出彩,竟是因为用了这套最新的网红cad图库!

最后把饮水机拖动到这里,就完成啦

大红大绿80㎡,竟然搭出最高级的北欧风!

[陕西]浓缩果汁生产企业总部办公楼cad装修图

关键词: 二居室施工图设计现代简约风格住宅设计家装cad平面

经常会先导入cad平面图,再根据导入的平面图的准确尺寸在3ds中建立

3,提供原始文件:客户将获得cad图纸的原始文件,可用于设计,材料计算或

随机推荐

发现更多精彩图片

《微微一笑很倾城》杨洋帅气剧照图片桌面壁纸

迪奥珠宝dior à versailles, c?té jardins系列桌面壁纸

女孩被蜘蛛袭击裹成了木乃伊

一只黑色狮子狗的大肖像,孤立在黑色背景上

勒·柯布西耶作品《萨伏伊别墅》他最著名的作品是"萨伏伊别墅",有一

观音借库2021日期吉时「辛丑」牛年攻略 - 大坑莲花宫.

手机发热就像全球变暖没有厂商有办法

北京朝阳苹果手机专卖店