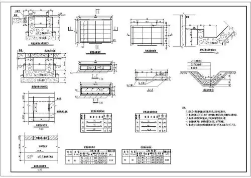
排水沟做法详图

高清图片下载 免费 安全无风险
排水沟做法详图

排水沟做法详图

点击图片查看原图

图片信息

  • 格式: JPG
  • 尺寸: 1137x890
  • 大小: 约1.2MB

版权声明

相关标签

自然风光 高清壁纸 4K画质

分享图片

相关推荐

基于当前图片的相似推荐

[分享]土建排水沟图集资料下载

某排水沟节点构造详图

经典轻型及重型盖板排水沟结构设计cad全套施工图(甲级院设计)

线形排水沟缝隙式排水沟

大家好排水沟的沉降缝这样套子目对吗

排水沟节点详图(散水明沟,刮泥蓖子等)施工图下载【id:165462193】

这个排水沟在图纸上范围在哪里有什么画呢

截水沟排水沟大样图

排水沟做法标准设计(2017年最新资料)

随机推荐

发现更多精彩图片

邓超孙俪演这部剧时候就动真感情了吧!

幼儿园宣传栏背景图

学士服学位学士服批发毕业礼服定做大学生女学院风文工本科硕博士服帽

德国与英国交换领土,纳米比亚为何多了一条胳膊?

日常漂亮线条简笔画

45度倒角其实并不是45度,真正的碰角施工不能真的把瓷砖边缘切成45度

到底有多复杂?原来是电磁升降机_工作_美国海军_电机

翔安东山控规大调整!区政府新址存悬念!东部中心有机会?_规划

短是什么意思(短的讲解)-第6张图片-创女网

有时候 莫名其妙的想哭 因为心里积攒了太多的委屈 想起 - 抖音