防水工程-卫生间防水施工

高清图片下载 免费 安全无风险
防水工程-卫生间防水施工

防水工程-卫生间防水施工

点击图片查看原图

图片信息

  • 格式: JPG
  • 尺寸: 554x625
  • 大小: 约1.2MB

版权声明

相关标签

自然风光 高清壁纸 4K画质

分享图片

相关推荐

基于当前图片的相似推荐

12j201平屋面建筑构造电子版高清图集

12j201平屋面建筑构造a20_12j201变形缝图集卷材,涂膜防水屋面女儿墙

12j201:平屋面建筑构造

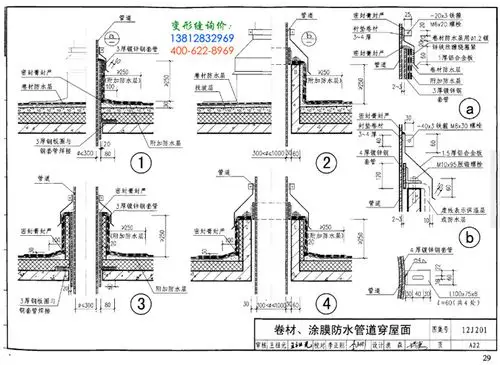
12j201平屋面建筑构造a22_12j201变形缝图集卷材,涂膜防水管道穿屋面

每日一识丨地下室屋面卫生间防水节点大样图集

设备基座_平屋面做法图集12j201e9_12j201图集e9_建筑图集12j201e9

同层排水卫生间防水怎么做?_闪电家修网

随机推荐

发现更多精彩图片

c就不要演丑角!这几位女星告诉你,什么叫扮丑不糊弄观众

性感美女黑色连衣裙尽显身材曲面诱惑迷人

在节目里,林太太经常抱怨她已故的前夫.

倪妮着粉色渐变亮片礼服 腰肢纤细摇曳生姿 妩媚动人 迷死个人_女性

小草- 吉他谱(含弹唱视频)(王福熠编配) - 嗨吉他

创祥摩托车电瓶12v免维护干蓄电池125弯梁12伏9a7a踏板车通用包邮

红玫瑰陈奕迅尤克里里曲谱

动漫头像和壁纸# #原神# 各角色精美可爱头像

黑塔利亚中国拟人 王耀

幼儿园手工#小手做简单好看的小恐龙-度小视