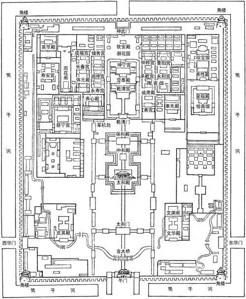
班里卷王们画的故宫平面图和我画的故宫平面图#故宫 - 抖音

高清图片下载 免费 安全无风险
班里卷王们画的故宫平面图和我画的故宫平面图#故宫  - 抖音

班里卷王们画的故宫平面图和我画的故宫平面图#故宫 - 抖音

点击图片查看原图

图片信息

  • 格式: JPG
  • 尺寸: 990x1280
  • 大小: 约1.2MB

版权声明

相关标签

自然风光 高清壁纸 4K画质

分享图片

相关推荐

基于当前图片的相似推荐

故宫平面图,核心的分区是这样的 很多人来故宫就是中轴线走一遭,最后

北京故宫门票电子票快速入院上下午通用检票口刷身份证入院无需取票

北京故宫深度游览攻略

探秘北京系列活动—————走进故宫文化

bai故宫平面图简笔画

随机推荐

发现更多精彩图片

一男一女超可爱萌娃情侣头像图片

被遗落的天堂莫斯卡,这里不仅有梦幻般的自然风光更有萌宠土拨鼠

二次元动漫女生头像|因为喜欢,所以情愿

咸鱼蒸五花肉.一道简单又美味的下饭菜.

76万提了辆宝马740li,再开朋友的奔驰s级,车主有话要说

1 机翼及翼型的基本知识,翼型绕流图画ppt

今天是格瑞虎虎明天是雷狮虎虎

除了时间合适之外,787也是我最爱的机型,东上航的787公务舱更是国内

教师节黑板报!这次的仪式感给我们的老师安排上吧#粉笔画 #黑 - 抖音